Traumhaus mit Dachterrasse

Willkommen Zuhause. Der Anspruch war hoch – die Bauherren wünschten sich ein funktionales, modernes und hoch energieeffizientes Haus. Auf Gemütlichkeit wollten sie dennoch nicht verzichten. Dieses KfW-40-Haus vereint stilvolle Mischfassade aus Klinker und Putz, hohen Kniestock und großzügige Dachterrasse mit lichtdurchfluteten, offenen Wohnräumen. Es gibt reichlich Platz für Individualität. Der helle und großzügige Wohn-Essbereich mit der gut geplanten offenen Küche ist das Herzstück des Hauses. Hier ist Raum für Miteinander, Musik und Geselligkeit. Ergänzt wird das Erdgeschoss durch ein Fitnessstudio, ein Gästezimmer und Duschbad sowie einen praktischen Hauswirtschaftsraum. Die geschlossene, gerade Holztreppe bietet jede Menge Stauraum.

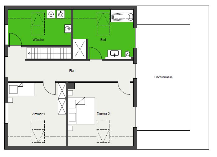
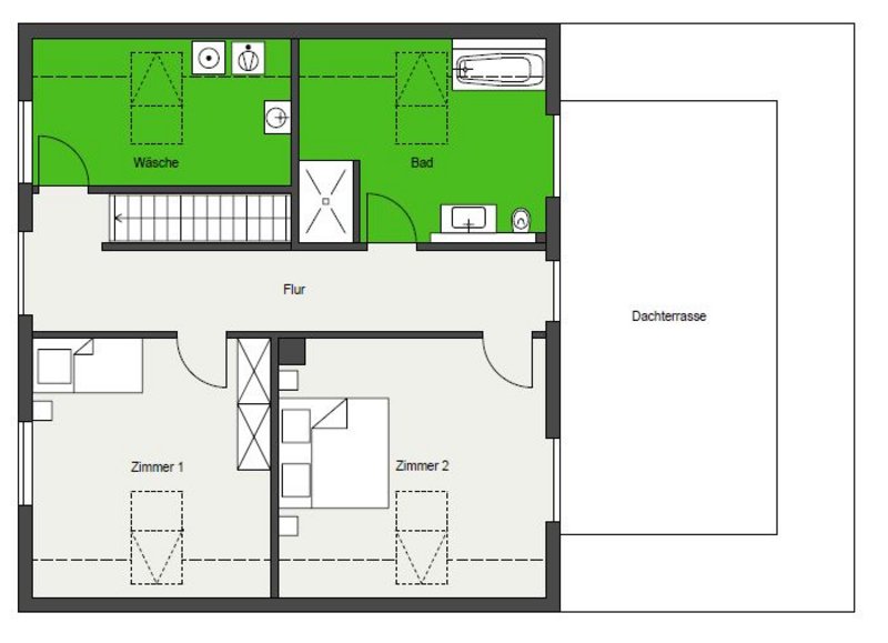
Das Raumkonzept im Obergeschoss umfasst nicht nur Schlafzimmer, zwei Homeoffices und ein modernes Wellness-Bad, sondern auch einen praktischem Wäscheraum mit Platz für Waschmaschine, Trockner, Bügelbrett und Wäscheständer – einfach komfortabel. Gemütliche Holzbalkendecken schaffen ein warmes Ambiente und ein gutes Lebensgefühl, während Wärmepumpe, Photovoltaik-Anlage, Stromspeicher und 300 mm Dämmung das Traumhaus zukunftssicher und energieeffizient machen. Eine perfekte Symbiose von modernem Wohnen und nachhaltiger Technik.

Upgrades

(zusätzlich zu unseren allgemeinen Vorteilen)

  • Mischfassade
  • Eingangsüberdachung
  • Thermo 300 Dämmpaket
  • Stromspeicher als Ergänzung zur PV-Anlage
  • Zusätzliche Dusche im Gäste-WC
  • Bodengleiche Duschen

Sie blättern lieber, statt zu klicken?!

Gerne senden wir Ihnen kostenfrei unseren Katalog zu. Entdecken Sie entspannt auf der heimischen Couch, was wir Ihnen zu bieten haben.

Katalog anfordern

Weitere Bilder vom Traumhaus mit Dachterrasse

Baubeschreibung

Die Bau- und Leistungsbeschreibung wird Ihnen einen detaillierten Ein- und Überblick über die kalkulierten und angebotenen Leistungen für Ihr Traumhaus geben!

PDF herunterladen 

Grundrisse

Und wann werden Sie zu unseren Nachbarn?

0 41 32 - 220

Oldendorfer Straße 49
21385 Amelinghausen

Unsere Werte sind Ihre Vorteile

Regional

Unsere tiefe Verbundenheit mit der Region Lüneburger Heide macht uns zu Ihrem verlässlichen Partner.

Nachhaltig

Die Bedürfnisse und Lebensgrundlage kommender Generationen zu berücksichtigen und zu sichern ist unser Ziel.

Individuell

Jedes unserer Manufakturhäuser ist einzigartig in Design, Materialien und Ausführung, weil Sie und Ihre Wünsche im Fokus stehen.